21 Robinson Avenue, Echo Place, Brantford

21 Robinson Avenue

Echo Place, Brantford

21 Robinson Avenue

Echo Place, Brantford

$740,000

Bedroom icon2 Beds
Bathroom icon2 Bath
Squarefootage icon1,104 sqft

About this House

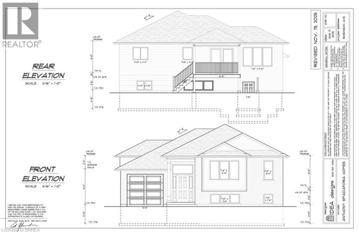
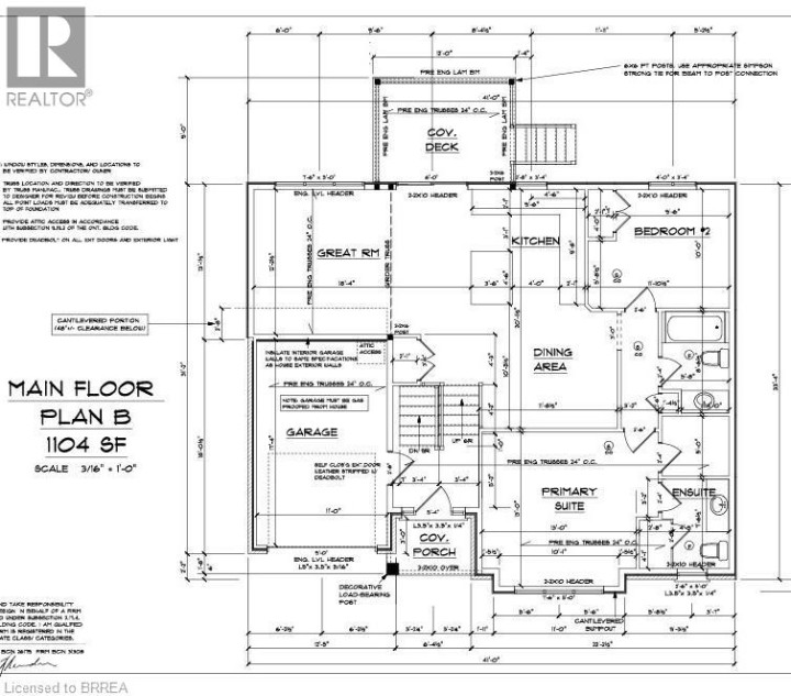
Welcome to 21 Robinson Ave—a newly built detached raised ranch in the desirable Echo Place neighbourhood of Brantford, offering modern finishes, functional design, and exceptional future potential. Currently under construction, this 2-bedroom, 2-bathroom home features 1,104 sq. ft. of thoughtfully designed living space with 9-foot ceilings and a bright, open-concept layout. The main level is finished with durable vinyl laminate flooring throughout, complemented by tiled bathrooms, delivering both style and low-maintenance living. The spacious kitchen, living, and dining areas flow seamlessly, creating an ideal setting for everyday living and entertaining. Well-appointed bedrooms and modern bathrooms complete the upper level with comfort and efficiency in mind. The unfinished lower level presents a significant opportunity, with the property already permitted for an Additional Dwelling Unit (ADU)—perfect for generating rental income, accommodating extended family, or increasing long-term value. An attached single-car garage with a double driveway provides ample parking, while the home’s premium lot backs onto a forested area—offering privacy, tranquility, and a natural backdrop rarely found in newer construction. Located on a quiet street in Echo Place, this home is surrounded by established residential charm with convenient access to parks, shopping, and major routes. Families will appreciate the close proximity to both elementary and high schools, making day-to-day living practical and convenient. A well-connected yet peaceful neighbourhood, Echo Place continues to attract buyers seeking both lifestyle and long-term value in Brantford. A smart opportunity for first-time buyers, downsizers, or investors looking to secure a modern home with built-in upside in a growing community. (id:14735)

More About The Location

Colborne Street East to Robinson Avenue

Listed by Royal LePage Action Realty.

MLS® Reciprocity Brought to you by your friendly REALTORS® through the MLS® System and TDREB (Tillsonburg District Real Estate Board), courtesy of Brixwork for your convenience.
The information contained on this site is based in whole or in part on information that is provided by members of The Canadian Real Estate Association, who are responsible for its accuracy. CREA reproduces and distributes this information as a service for its members and assumes no responsibility for its accuracy.
The trademarks REALTOR®, REALTORS® and the REALTOR® logo are controlled by The Canadian Real Estate Association (CREA) and identify real estate professionals who are members of CREA. The trademarks MLS®, Multiple Listing Service® and the associated logos are owned by CREA and identify the quality of services provided by real estate professionals who are members of CREA. Used under license.

Browse Photos

Features

  • MLS®: 40816049
  • Type: House
  • Bedrooms: 2
  • Bathrooms: 2
  • Square Feet: 1,104 sqft
  • Lot Size: 3,713 sqft
  • Frontage: 47.00 ft
  • Depth: 79.00 ft
  • Full Baths: 2
  • Parking: 2 (Attached Garage)
  • Storeys: 1 storeys
  • Year Built: 2026
  • Construction: Poured Concrete

Rooms and Dimensions

  • 4pc Bathroom: 8'6'' x 5'8''
  • Bedroom: 10'0'' x 11'10''
  • Full bathroom: 7'6'' x 7'5''
  • Primary Bedroom: 13'0'' x 13'0''
  • Family room: 12'2'' x 18'4''
  • Dining room: 10'5'' x 11'8''
  • Kitchen: 9'8'' x 9'6''

Contact me now to see this property in person!

519.532.3995




Are you currently working with a Realtor®?