215 Nelson Street, Brantford

215 Nelson Street

Brantford

215 Nelson Street

Brantford

$699,900

Bedroom icon5 Beds
Bathroom icon3 Bath
Squarefootage icon2,340 sqft

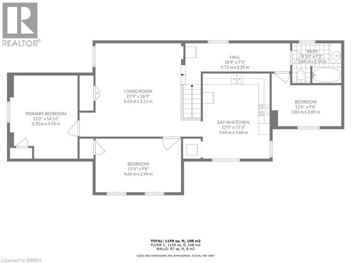
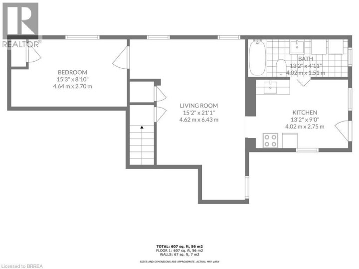
About this Triplex

Turnkey Triplex Investment in Brantford. This is an outstanding opportunity to own a fully rented triplex in a quiet and desirable location of Brantford. The property has been well maintained and features a strong rental mix with two one-bedroom units and one three-bedroom unit, all occupied by tenants who pay their own utilities. The building offers excellent amenities for tenants, including a backyard, parking for three vehicles, and a single garage. With a cap rate of 6.1%, this property already provides dependable rental income. The current tenants are stable and reliable, ensuring consistent returns for the next owner. This triplex also presents strong income potential for the future value through thoughtful improvements. Brantford continues to be one of Ontario’s fastest-growing communities, making this property a secure and appreciating investment. Opportunities to acquire a turnkey multi-residential property in a quiet, well-situated neighbourhood are rare. This is a chance to grow your portfolio with a strong asset that offers both immediate returns and long-term upside. Arrange your private showing and take advantage of this excellent investment opportunity. (id:14735)

More About The Location

MURRAY ST TO NELSON ST

Listed by Re/Max Twin City Realty Inc.

MLS® Reciprocity Brought to you by your friendly REALTORS® through the MLS® System and TDREB (Tillsonburg District Real Estate Board), courtesy of Brixwork for your convenience.
The information contained on this site is based in whole or in part on information that is provided by members of The Canadian Real Estate Association, who are responsible for its accuracy. CREA reproduces and distributes this information as a service for its members and assumes no responsibility for its accuracy.
The trademarks REALTOR®, REALTORS® and the REALTOR® logo are controlled by The Canadian Real Estate Association (CREA) and identify real estate professionals who are members of CREA. The trademarks MLS®, Multiple Listing Service® and the associated logos are owned by CREA and identify the quality of services provided by real estate professionals who are members of CREA. Used under license.

Browse Photos

Features

  • MLS®: 40760474
  • Type: Triplex
  • Bedrooms: 5
  • Bathrooms: 3
  • Square Feet: 2,340 sqft
  • Full Baths: 3
  • Parking: 3 (Detached Garage)
  • Storeys: 2 storeys
  • Construction: Block

Contact me now to see this property in person!

519.532.3995




Are you currently working with a Realtor®?