19 - 85 Bonds Corner Road, Woodstock - North, Woodstock

19 - 85 Bonds Corner Road

Woodstock - North, Woodstock

19 - 85 Bonds Corner Road

Woodstock - North, Woodstock

$569,999

About this Retail

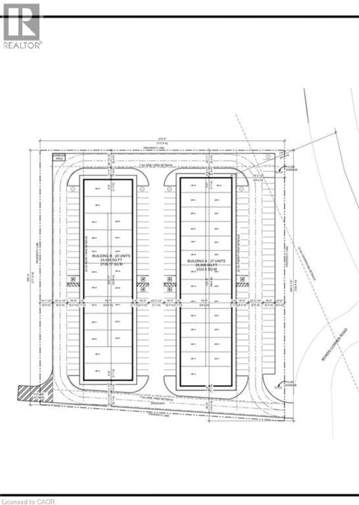
Bonds Corner Plaza presents a compelling pre-construction commercial investment opportunity in a prime Woodstock location, directly across from Toyota. Scheduled for completion by April 30, 2026, this unit benefits from strong fundamentals including high traffic exposure, excellent visibility, and proven rental demand in the area. Strategically positioned with quick access to Highway 401, nearby residential communities, industrial corridors, and major employment hubs, the property is well suited for stable cash flow and long-term appreciation. An excellent opportunity to secure a quality asset in a growing commercial node. (id:14735)

Listed by HOMELIFE MIRACLE REALTY MISSISSAUGA.

MLS® Reciprocity Brought to you by your friendly REALTORS® through the MLS® System and TDREB (Tillsonburg District Real Estate Board), courtesy of Brixwork for your convenience.
The information contained on this site is based in whole or in part on information that is provided by members of The Canadian Real Estate Association, who are responsible for its accuracy. CREA reproduces and distributes this information as a service for its members and assumes no responsibility for its accuracy.
The trademarks REALTOR®, REALTORS® and the REALTOR® logo are controlled by The Canadian Real Estate Association (CREA) and identify real estate professionals who are members of CREA. The trademarks MLS®, Multiple Listing Service® and the associated logos are owned by CREA and identify the quality of services provided by real estate professionals who are members of CREA. Used under license.

Browse Photos

Features

  • Type: Retail
  • Size: 869 sqft
  • $/SQFT: $655.93

Contact me now to see this property in person!

519.532.3995




Are you currently working with a Realtor®?