 
					
				$490,000
About this Townhome
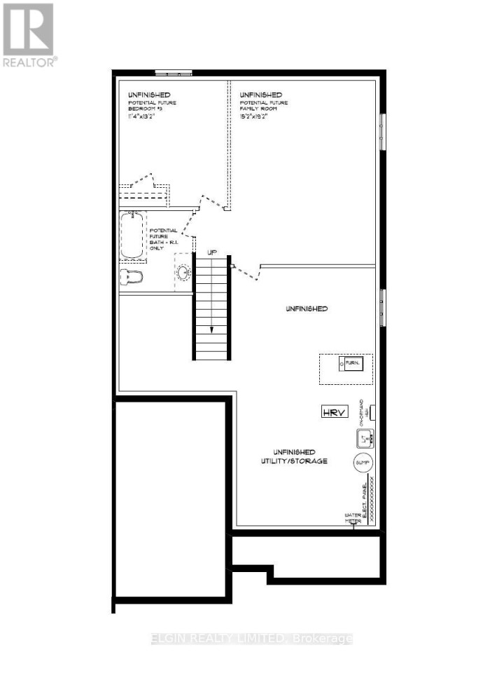
Welcome to 11 Canary Street, a beautifully finished freehold end-unit townhome built by Hayhoe Homes. This thoughtfully designed residence features 2 bedrooms, 2 bathrooms, and a single car garage, making it ideal for first-time buyers or those looking to downsize. Enjoy the ease of main floor living with a spacious primary suite that includes a walk-in closet and private ensuite. The open-concept layout showcases 9\' ceilings, luxury vinyl plank flooring as per plan, and a stylish kitchen with quartz countertops, a pantry, and a central island that flows seamlessly into a bright great room with cathedral ceiling and a patio door leading to the rear deck. A second bedroom, bathroom, and laundry room complete the main level. The unfinished basement offers excellent potential for a future family room, third bedroom, and additional bathroom. Other highlights include a covered front porch, central air conditioning & HRV system, Tarion New Home Warranty, plus numerous upgraded finishes throughout. Located in the desirable Northcrest Estates community, this home is just minutes from shopping, restaurants, parks, trails, and highway access. Taxes to be assessed. (id:14735)
More About The Location
Cross Streets: Braun Ave. & Canary St. ** Directions: North Street E. to Braun Ave., Left on Canary St.
Listed by ELGIN REALTY LIMITED.
							 Brought to you by your friendly REALTORS® through the MLS® System and TDREB (Tillsonburg District Real Estate Board), courtesy of Brixwork for your convenience.
							Brought to you by your friendly REALTORS® through the MLS® System and TDREB (Tillsonburg District Real Estate Board), courtesy of Brixwork for your convenience.
							The information contained on this site is based in whole or in part on information that is provided by members of The Canadian Real Estate Association, who are responsible for its accuracy. CREA reproduces and distributes this information as a service for its members and assumes no responsibility for its accuracy.
							The trademarks REALTOR®, REALTORS® and the REALTOR® logo are controlled by The Canadian Real Estate Association (CREA) and identify real estate professionals who are members of CREA. The trademarks MLS®, Multiple Listing Service® and the associated logos are owned by CREA and identify the quality of services provided by real estate professionals who are members of CREA. Used under license.
						
Features
- MLS®: X12480851
- Type: Townhome
- Building: 11 Canary Street, Tillsonburg
- Bedrooms: 2
- Bathrooms: 2
- Square Feet: 1,100 sqft
- Full Baths: 2
- Parking: 3 (, Garage)
- Storeys: 1 storeys
- Construction: Poured Concrete
 
			 
						 
						